行业要闻

您现在的位置是:首页>>行业动态>>行业要闻

3人遇难!损失190万+!14名党员、公职人员予以问责→

2025-02-19 23:27:30行业要闻1168人已围观


3人遇难!损失190万+!14名党员、公职人员予以问责→

中国消防 2025年02月19日 06:40 

近日

潮州市政府批复了

潮州市饶平县三饶镇“4·15”较大火灾

事故调查报告

image.png





事发经过

2024年4月15日2时50分许,潮州市消防救援支队指挥中心接到报警:潮州市饶平县三饶镇一自建房起火。

2时58分首战力量三饶镇专职消防队到达现场立即开展救援,樟溪消防救援站、新塘专职消防队、黄冈消防救援站先后到达现场开展救援。

3时18分基本控制火势。现场救出被困人员4人,除张**(陈**的婆婆)外,其余3人均第一时间送往医院救治,后经医院救治无效死亡。





事故性质认定

认定潮州市饶平县三饶镇“4·15”较大火灾事故是一起较大生产安全责任事故





直接经济损失情况

image.png

▲起火建筑概貌

此次火灾直接经济损失197.16万元,其中3名死者人身伤亡后支出费用2.6万元,善后处理费用3.5万元,烧毁的货物、家具、生活用品、房屋装修等物品直接财产损失191.06万元。





起火建筑基本情况

image.png

▲现场方位图

起火建筑位于潮州市饶平县三饶镇南新村西平路485号,建筑主体为3层钢筋混凝土结构,坐东朝西,南北两侧贴邻村民自建房,西侧为西平路,东侧为水沟及山地。该建筑单层面积约160平方米,总建筑面积约480平方米。首层为自主经营的五金店,第二、三层为居住用。





直接原因

起火原因为陈**个人自建房首层中部茶几东面铁架底部隔板上的电子设备(自用电器,非销售货物)内置的18650锂电池热失控自燃,引燃周边可燃物蔓延成灾。





间接原因

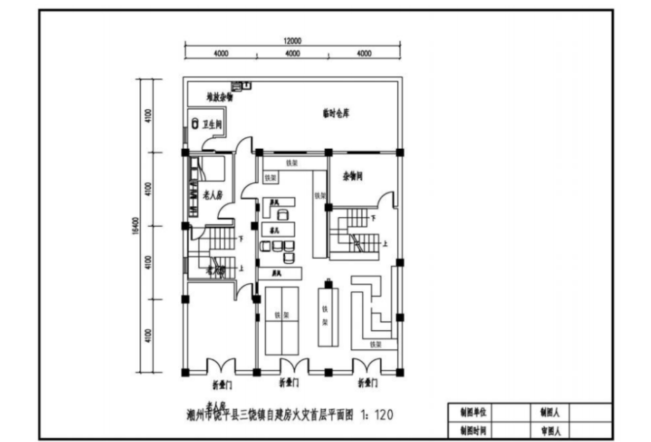
image.png

▲现场平面图

一是涉事房主、经营者安全意识淡薄。涉事房主、经营者缺乏基本的消防安全意识,违规在经营性场所内设置住宅,且未与经营、存储位置进行物理分隔,为后续火灾发生和人员伤亡埋下隐患。


二是属地监管责任缺位,隐患排查整治和宣传教育工作不力。三饶镇、南新村委会未认真落实消防安全网格化管理制度,网格人员对经营性自建房安全检查的重点把握不准,未能对“有无存在‘三合一’问题”进行精准辨识。


三是部门监管联动不足,未有效指导属地工作落实。三饶派出所未认真开展日常消防监督检查和消防宣传教育工作,指导村(居)委会履行消防安全职责存在不足,未有效提升群众的安全防范意识,日常消防监督检查和消防宣传教育工作不到位。


四是基层救援力量建设不到位。三饶镇政府专职消防队、南新村微型消防站履职缺失,基层监督管理不到位、重视不够、投入不足,基层消防救援力量亟需进一步强化,打早灭小能力还有待进一步提高。





人员死亡分析
火灾荷载大,产生大量有毒烟气

自建房首层起火部位处存放了大量的杂物、生活用品等,火灾荷载大,火灾产生大量高温浓烟毒气迅速蔓延导致人员窒息死亡。
火灾发生时间是住宅亡人火灾高发时间段

本次火灾发生在凌晨2时29分许,是人体生理上第二次深度睡眠周期,火灾发生时,二层3名被困人员正处于熟睡中,当发现发生火灾时,火势已处于猛烈燃烧阶段,错失了最佳的逃生时机

缺乏基本的逃生自救常识

起火建筑为村民自建住宅、钢筋混凝土结构,内部有疏散楼梯,首层起火后,火灾产生的高温浓烟顺楼梯向上蔓延,封堵逃生通道,二层迅速形成高浓度的烟雾环境,加之被困人员缺乏逃生自救的基本常识,未向逃生窗处进行逃生自救,造成在二层被困的3人(2个大人和1个小孩)吸入过多的有毒高温烟气无法逃生。





对事故有关单位及责任人的处理

潮州市纪委监委责成饶平县人民政府向潮州市人民政府作出深刻书面检查;责成三饶镇单位、政府向饶平县委、县政府作出深刻书面检查,认真汲取事故教训,深刻检视问题并落实整改,整改落实情况及时向饶平县委、县政府报告;责成三饶派出所向饶平县公安局作出深刻书面检查。各级纪检监察部门按干部管理权限对14名党员、公职人员予以问责。


写留言
留言 9
已无更多数据



二维码

Tags:

随机图文

留下联系方式,获取专属客服

X

首页

电话咨询

立即获取
消防检测报告